KONTAKT
PT FR EN
KONTAKT
WILLKOMMEN ZU

Grundstück A13





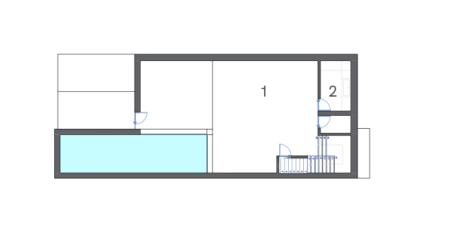
KELLER
82 m2

1. Basement · 79.8 m2
2. Laundry · 6.8 m2






KELLER
82 m2

1. Basement · 79.8 m2
2. Laundry · 6.8 m2
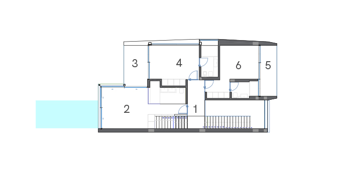
ERDGESCHOSS
73.9 m2

1. Entrance Hall · 9.3 m2
2. Guest Toilet · 2.5 m2
3. Sitting Room · 22 m2
4. Kitchen · 19.95 m2
5. Terrace · 31.5 m2






ERDGESCHOSS
73.9 m2

1. Entrance Hall · 9.3 m2
2. Guest Toilet · 2.5 m2
3. Sitting Room · 22 m2
4. Kitchen · 19.95 m2
5. Terrace · 31.5 m2
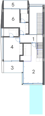
1. STOCKWERK
93 m2

1. Landing · 9.8 m2
2. Bedroom · 18 m2
3. Terrace · 7.36 m2
4. Bedroom · 13.6 m2
5. Terrace ·7.69 m2
6. Bedroom · 13 m2






1. STOCKWERK
93 m2

1. Landing · 9.8 m2
2. Bedroom · 18 m2
3. Terrace · 7.36 m2
4. Bedroom · 13.6 m2
5. Terrace ·7.69 m2
6. Bedroom · 13 m2
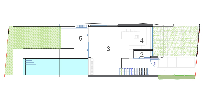
TERRASSE
58 m2






TERRASSE
58 m2




Property Features






Über
In allen Objekten werden italienische Fliesen von Emilgroup verwendet, eine der führenden Unternehmen der keramischen Oberflächenindustrie, die seit 1961 Fliesen herstellen. Sie liefern architektonische Lösungen, die den Bedürfnissen des zeitgenössischen Lebens entsprechen. Boden- und Wandbeläge mit elegantem, raffiniertem, trendigem Design ermöglichen jedem, seinen wohnraum in seinem eigenen Stil zu gestalten .

Leistungen
Widerstandsfähigkeiten gegen Flecken (Graffiti) und Chemikalien (saurer Regen). Hervorragende mechanische Festigkeit (Biege- / Windlast) Oberflächenhärte (kratzfest) Frost- und Temperaturwechselbeständigkeit UV-Farbechtheit Feuerwiderstand und Reaktion


www.emilgroup.it/en


Von Megabox gelieferte Materialien

www.megabox.pt/en





Über
Holland Aqua Sight mit Sitz in den Niederlanden ist ein Unternehmensexperte für alle Arten von Unterwasserfenstern. Unter alleiniger Verwendung von PLEXIGLAS®, das als einer der wertvollsten und vielseitigsten Kunststoffe der Welt gilt. Diese Lösung kommt an vielen Alltagsgegenständen wie Flugzeugbau- und Flugzeugkabinenfenstern für Monitore und Displays, als Strukturverglasung, in Lärmschutzwänden oder in der Werbung zum einsatz.

Leistungen
Leistungen Hat das halbe Gewicht von Glas, ist aber stärker. Bricht oder bricht nicht wie Glas. Vollständig anpassbar in Größe und Plattendicke, je nach Anforderungen. Leicht zu reinigen. Keine Kondensation oder Feuchtigkeit. Keine Vergilbung oder Trübung Kristallklare sicht wie bei Glas.


www.hollandaquasight.com/en/






Über
Alle Armaturen für Bad und Dusche stammen von der italienischen Firma Bongio, die 1936 gegründet wurde. Von Anfang an beschloss das Unternehmen, einen Weg der Innovation, Qualität und des Designs einzuschlagen, der seine kreative DNA durch eine Kombination von Funktionalität, Stil, Technologie und handwerklicher Sorgfalt zum Detail geformt hat .

Leistungen
Leistungen 10 Jahre Garantie, alle Produkte und sorgfältig hergestellt aus den besten italienischen Materialien, einschließlich zertifiziertem bleiarmen Messing, hochwertigem Feinporzellan, Muranoglas und 316-Edelstahl. Mehr Lebensdauer, Leuchtkraft, Haltbarkeit, Beständigkeit und hohe Leistung, unabhängig vom Klima oder der geografischen Lage aufgrund spezieller Fertigungs- und Veredelungstechniken


www.bongio.com/en/


Von Megabox gelieferte Materialien

www.megabox.pt/en





Über
In allen Bädern wird Keramik von Villeroy & Boch verwendet. Das Unternehmen wurde als Hersteller innovativer und stilvoller Produkte anerkannt, die das Leben der Menschen verbessern, kontinuierliche Inspiration bieten und neue Horizonte für eine wirklich personalisierte Innenausstattung eröffnen.

Leistungen
CeramicPlus-Oberfläche zur Erleichterung der Pflege und Reinigung TitanCeram-Material sorgt für mehr Festigkeit und Beständigkeit Doppelte Glasur für eine sehr robuste und haltbare Oberfläche Wassersparende und umweltfreundliche Toiletten


www.villeroy-boch.co.uk


Von Megabox gelieferte Materialien

www.megabox.pt/en





Über
Silestone ist eine Mischung aus 90% natürlichem Quarz, was es außerordentlich hart und belastbar macht. Es ist eine ausgezeichnete Oberfläche für Küchenarbeitsplatten, Badezimmer, Fußböden und Wandverkleidungen bei minimaler Anzahl von Fugen.

Leistungen
Fleckenbeständig 25 Jahre Garantie Säurebeständig Schlagfest Kratzfest


www.silestone.com


Von Megabox gelieferte Materialien

www.megabox.pt/en





Über
Lösungen, die das Öffnen und Schließen von Möbeln zu einem faszinierenden Erlebnis machen und dem gesamten Haus Bewegungsqualität und Komfort bieten. Insbesondere zu Küchen. Die Blum-Produktpalette wird durch umfangreiche Supportleistungen ergänzt.

Leistungen
Reibungsloses Schließen von Schubladen und Türen Grifflose Möbel Praktische Schranklösungen


www.blum.com


Von Megabox gelieferte Materialien

www.megabox.pt/en





Über
BORA Systemprodukte ergänzen die Produktpalette zu einem harmonischen Gesamtsystem für Umluft- und Abluftlösungen. Die perfekt aufeinander abgestimmten Komponenten bieten Ihnen optimale Leistung und eine 100% ige Funktionsgarantie.

Leistungen
Gerüche und Fettpartikel direkt vom Kochgeschirr abziehen Leiser und effektiver als herkömmliche Dunstabzugshauben Einfache Reinigung Hochwertige Materialien Keine Dunstabzugshaube in Kopfhöhe


www.bora.com


Von Megabox gelieferte Materialien

www.megabox.pt/en





Über
Siemens ist ein globales Kraftpaket in den Bereiche Elektrifizierung, Automatisierung und Digitalisierung. Als einer der weltweit größten Hersteller energieeffizienter und ressourcenschonender Technologien ist Siemens ein führender Anbieter von Systemen zur Energieerzeugung und -übertragung sowie für die medizinische Diagnose. Bei Infrastruktur- und Branchenlösungen nimmt das Unternehmen eine Vorreiterrolle ein. Leistungen
EffizientesTechnisches Innovatives Design und Betrieb


www.siemens-home.bsh-group.com


Von Megabox gelieferte Materialien

www.megabox.pt/en




Die einzigartigen, geschlossenen Konstruktionsmerkmale der 14 miteinander verbundenen Einheiten bieten die Möglichkeit, einen sicheren Bereich im Erdgeschoss zu schaffen, der nur für Bewohner zugänglich ist. Ein elektrisches Garagentor ermöglicht den Zugang zur Tiefgarage. Die Tiefgarage verfügt über zwei Parkplätze und eine Eingangstür für jede Villa Das perimeterüberwachte CCTV wird auch eine weitere Sicherheitsebene hinzufügen


International renommierter Architekt, der viele preisgekrönte Villen in der Algarve entworfen hat. Sein entwurf ist in ländern von London /Paris/Russland und Canada bis USA(Miami).zu sehen Die Verbindung von Luxus und Qualität, die mit seinen Entwürfen verbunden ist, ist auf der ganzen Welt bekannt.


DDas Innendesign in den Fonte Algarve Residences wurde von Quinta Style übernommen, die Designlösungen für jeden Teil des Hauses anbieten, einschließlich: Küchen und Badezimmer, Wohnräume im Freien, Innenräume und Veredelungen, maßgeschneiderte Möbel und Dekorationslösungen.





Erkundigen Sie sich über unsere Immobilien